Scuola sperimentale a Pansdorf (DE)

L’area del complesso scolastico-sportivo è un’ultima propaggine di territorio agricolo a contatto con il tessuto abitativo: alle sottili strisce edificate si sostituiscono, senza soluzione di continuità, le larghe maglie del territorio agricolo, poggiate sulla superficie ondulata del terreno e attraversate dai segni decisi dei redder.

I volumi si concentrano nel settore meridionale dell’area, lasciando a nord la zona sportiva, interpretata come elemento piano, neutro, in cui i due paesaggi si affacciano, dialogando tra di loro. Da un lato le curve di livello si addensano raccogliendo le ondulazioni del terreno in un margine duro a gradoni, dall’altro il tessuto urbano prospetta sotto forma di quinta verde discontinua. I volumi costruiti richiudono a sud l’invaso della grande “piazza sportiva” con forme allungate nella direzione est-ovest.

A contatto con la città, ne reinterpretano le regole morfologiche e ne prolungano la trama disponendosi perpendicolarmente all’asse stradale; verso la collina, invece, si deformano nella loro articolazione planimetrica e nei loro profili, piegandosi e fondendosi parzialmente con essa. Fulcro della composizione architettonica ed elemento di mediazione tra esterno e interno, l’atrio raccoglie la rete dei percorsi degli edifici in un volume a doppia altezza, che si proietta visivamente verso il paesaggio agricolo e si prolunga all’esterno nei tre cortili della scuola.

 

Testo di Ananda Ferrentino

INSERIMENTO URBANO

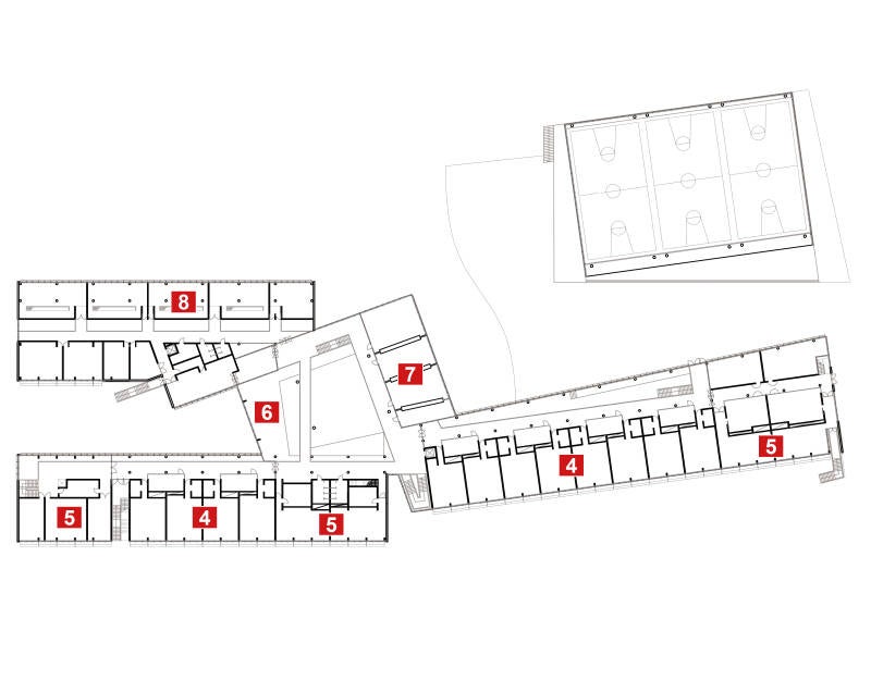
PLANIMETRIA

PIANTA PIANO TERRA

1. Atrio                              4. Aule didattiche

2. Servizi generali            5. Laboratori

3. Palestra e servizi

PIANTA PIANO PRIMO

4. Aule didattiche            7. Biblioteca

5. Laboratori                    8. Sale studio

6. Atrio di piano

PIANTA PIANO SECONDO

  9. Soppalchi studio libero         

10. Giardini pensili


SCUOLA SPERIMENTALE A PANSDORF (DE)

PROGETTO

Giovanna Ruggieri

CON

Monica Tinarelli, Claudio Palma, Marco Polastri, Bernhard Klein, Alfonso Gaggioli

PAESAGGIO

Barbara Negroni

CONCORSO

Concorso internazionale ad inviti
Scuola Omnicomprensiva Sperimentale
(IGS / Integrierten Gesamtschule)
Palestra e attrezzature sportive
a Pansdorf, Gemeinde Ratekau, Germania

Ente banditore: Landrat des Kreises Ostholstein

CRONOLOGIA

2000