Polo scolastico e impianti sportivi a Riale (BO)

L’intervento si colloca in un luogo di confine netto tra città e campagna dove il fronte urbano è perfettamente definito e compatto e la campagna presenta i suoi segni distintivi (gli alberi a doppio filare, le tessiture parallele dei campi, la geometria elementare degli edifici rurali). Pur fortemente legato all’ambito urbano, il complesso di edifici si apre verso il paesaggio rurale. I volumi di maggiori dimensioni con le funzioni più strettamente relazionate con l’esterno (laboratori della scuola primaria, refezione, palestra) aderiscono infatti al fronte urbano.

A seguire, l’edificio perde gradualmente il carattere di compattezza e di continuità per frammentarsi in diversi elementi costruiti che si protendono nel territorio agricolo in una progressiva riduzione di scala. Gli elementi terminali sono i due volumi delle sezioni della scuola dell’infanzia che dialogano con la campagna.

L’elemento di connessione è costituito da un complesso sistema di percorsi vetrati, corridoi attrezzati e snodi intesi non come semplici luoghi di transito, ma occasioni per organizzare nuovi spazi didattici o per aprire visuali verso l’esterno. Stagliandosi netti nella campagna con le loro coperture inclinate e le ampie superfici bianche, i volumi della scuola appaiono così a distanza come edifici isolati alleggerendone l’impatto.

 

Contributo al testo Ananda Ferrentino

INSERIMENTO URBANO

PLANIMETRIA DEL COMPLESSO SCOLASTICO E DELLE AREE SPORTIVE

PIANTA PIANO TERRA


SCUOLA DELL'INFANZIA                  SCUOLA PRIMARIA

1. Atrio scuola dell'infanzia               8. Atrio scuola primaria

2. Accoglienza                                      9. Aule didattiche

3. Sala morbida                                 10. Mensa

4. Riposo                                             11. Produzione pasti

5. Attività libere

6. Attività ordinate

7. Spazi insegnanti

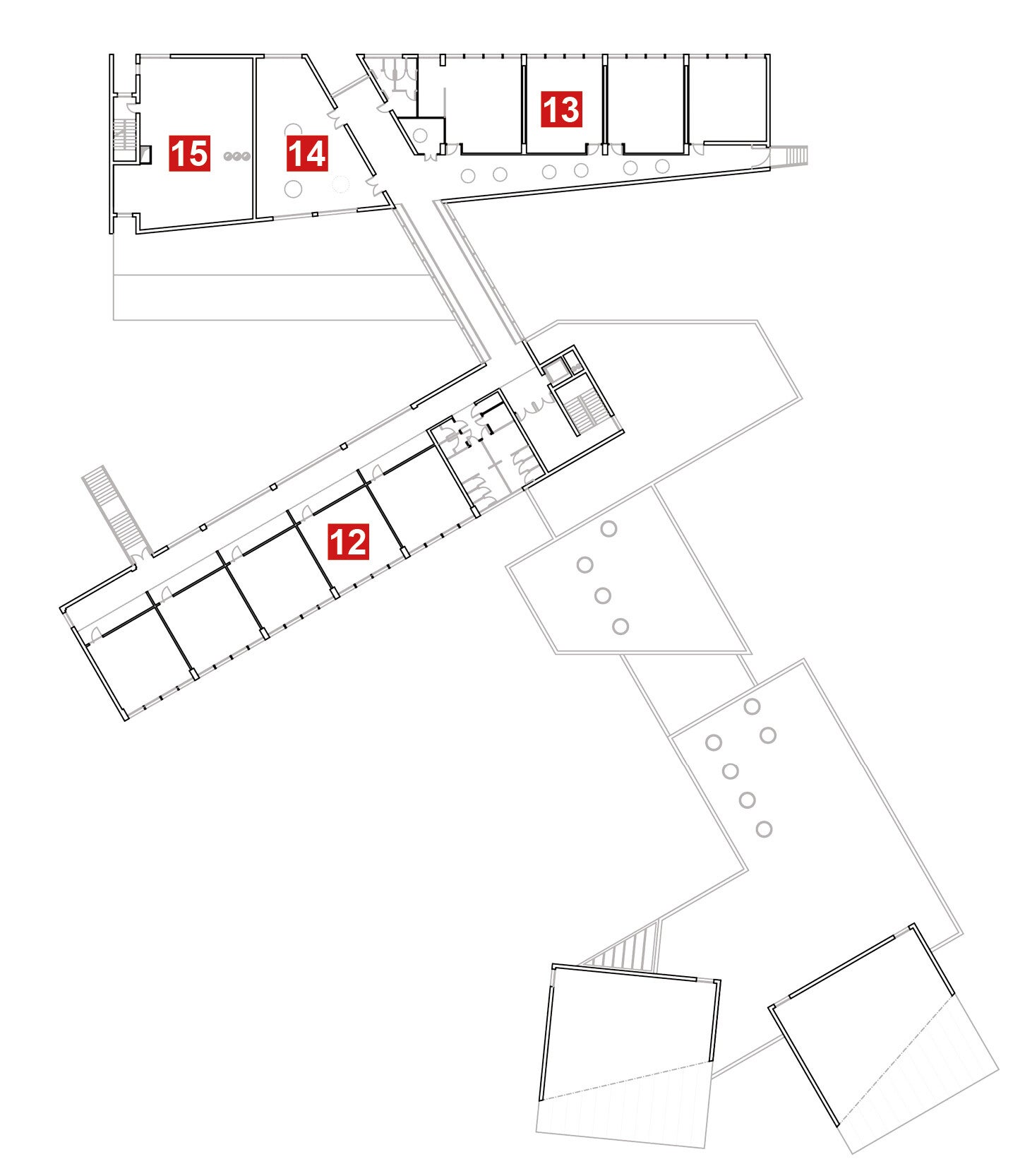
PIANTA PIANO PRIMO


SCUOLA PRIMARIA

12. Aule didattiche

13. Laboratori

14. Aula speciale

15. Sala polivalente


SCUOLA DELL'INFANZIA E SCUOLA PRIMARIA
PALESTRA POLIVALENTE E ATTREZZATURE SPORTIVE AD USO PUBBLICO

PROGETTO

Giovanna Ruggieri

CON

Claudio Battistini, Alfonso Gaggioli, Alessandro Tugnoli

STRUTTURE

Regolo Poluzzi

IMPIANTI

Massimo Savini, Paolo Rocchi

COMMITTENTE

Comune di Zola Predosa (BO)

LOCALIZZAZIONE

via Gesso - Riale di Zola Predosa (BO)

CRONOLOGIA

1999 - gara di progettazione

2002 - consegna dell'opera