POLO SCOLASTICO A GONZAGA (MN)

L’area scolastica si colloca ai margini orientali del centro abitato nell’ampia curva del canale di bonifica che attraversa la cittadina. L’organismo edilizio si inserisce nel paesaggio di pianura, estesi campi solcati da reticoli d’acqua, con volumi lineari, forme sottili bianche ed allungate, tracciando una linea netta, quasi un confine, un argine alla frammentazione delle forme residenziali. In avvicinamento, il fronte si scompone in corpi di fabbrica di calibro differente che racchiudono un vuoto centrale.

Origine della composizione è il grande edificio della didattica e dei servizi generali che definisce il contatto con l’ambito urbano. Il primo livello, un volume puro attraversato dalle ampie finestrature delle aule didattiche, poggia su un sistema di pieni e di vuoti da cui derivano per intersezione o per addizione i collegamenti vetrati al blocco polifunzionale ad ovest ed alle aule normali del primo ciclo ad est.

Ne nasce un luogo variegato, il grande cortile della scuola, dove aggetti e trasparenze, con tagli d’ombra differenti a seconda delle ore del giorno declinano l’articolazione dei volumi e della successione dei piani dando origine ad un ambiente sempre mutevole. Sul fondo, ad ovest, la discontinuità tra gli edifici radica il nuovo spazio al contesto permettendo la vista della chiesa parrocchiale al di là del canale.

Dal punto di vista funzionale una nuova viabilità disciplina i flussi veicolari e pedonali collegando efficacemente ciascuna fascia di utenza ai differenti ingressi del complesso.

INSERIMENTO URBANO

COLOR INTERIOR DESIGN E SEGNALETICA: SUSANNA POLLASTRI

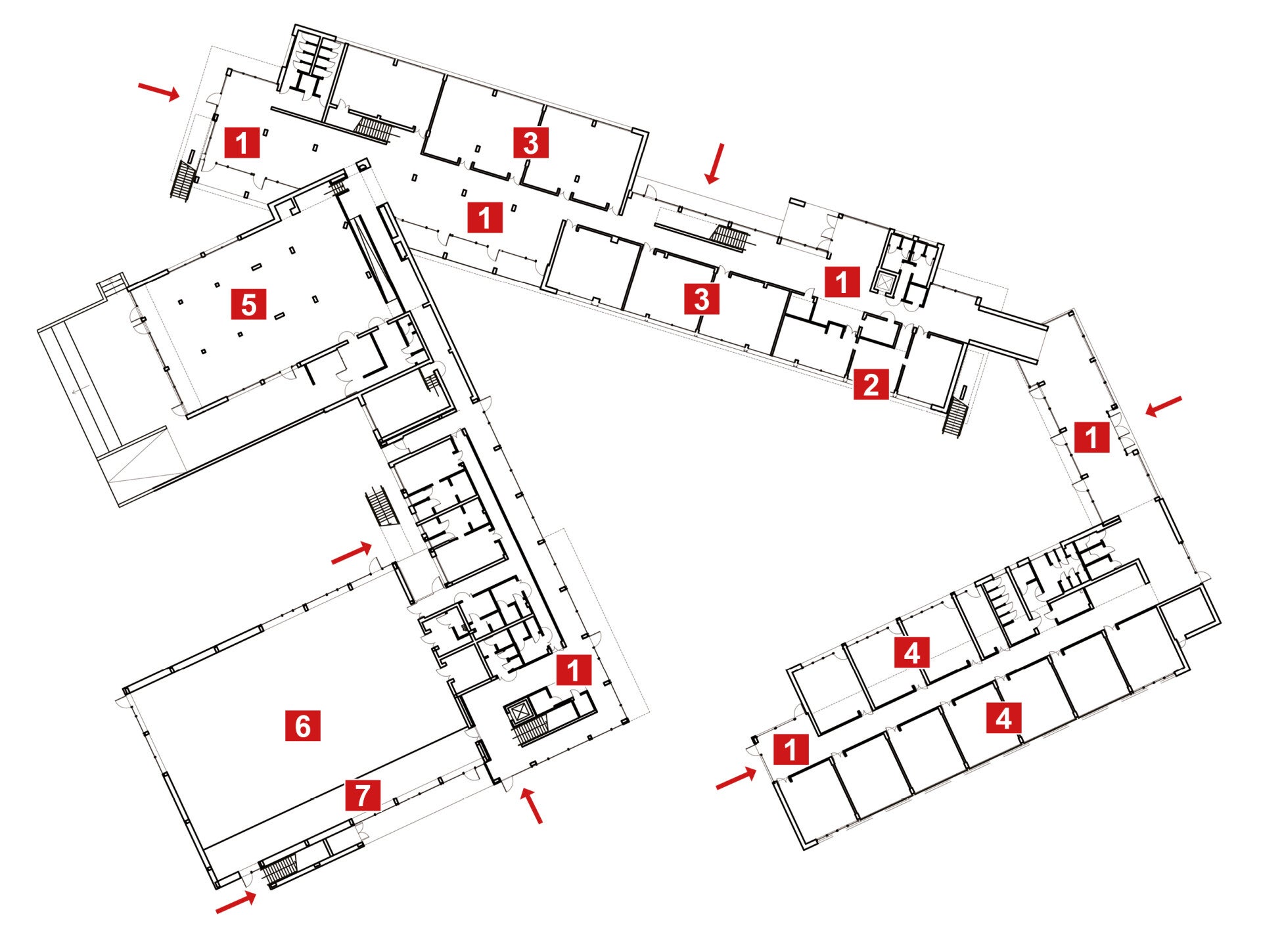
PLANIMETRIA

PIANTA PIANO TERRA

  1. Ingressi/gallerie
  2. Spazi insegnanti
  3. Laboratori
  4. Aule didattiche 1° ciclo
  5. Sala mensa e servizi
  6. Palestra polivalente e spogliatoi
  7. Spazio spettatori

PIANTA PIANO PRIMO

  8. Foyer

  9. Sala polivalente

10. Aule didattiche riconfigurabili 2° ciclo


POLO SCOLASTICO A GONZAGA (MN)

POLO SCOLASTICO DELLA SCUOLA PRIMARIA PER 25 CLASSI

PALESTRA E SALA POLIVALENTE

PROGETTO

Giovanna Ruggieri

CON

Giovanni Maggioni, Luca Nuzzo, Laura Maggiore, Emanuele Mesiano

STRUTTURE

Regolo Poluzzi

IMPIANTI

Massimo Savini

COMMITTENTE

Comune di Gonzaga (MN)

LOCALIZZAZIONE

via Sophie Germain – Gonzaga (MN)

CRONOLOGIA

2007 – gara di progettazione

2008/2013 - 1° stralcio per 15 classi e palestra polivalente

2012/2013 - 2° stralcio post terremoto per ulteriori 10 classi