Polo scolastico a Tremezzina (CO)

La proposta mette in valore la funzionale organizzazione degli spazi dell’edificio scolastico della fine degli anni settanta caratterizzando l’impianto distributivo con un ampio asse centrale replicato a più livelli.

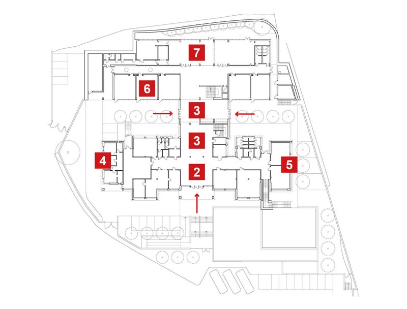
Vera e propria piazza interna, l’agorà, connette gli ambienti didattici e si apre con ampie vetrate sui cortili interni. Al piano terra, dall’ingresso principale conduce a monte all’ampio refettorio aperto sulla gradonata verde che trattiene la sponda collinare, mentre, viceversa, al primo piano si risolve in un ambiente dedicato alle attività musicali con vista aperta sul lago.

A monte, il nuovo blocco “alza” la sagoma del complesso al disopra della linea della vasta copertura piana, pur rispettando la visuale libera delle residenze circostanti, con il volume dell’auditorium ed il foyer con vista aperta sul lago, connotando così l’intero complesso con una cifra contemporanea.

A valle, la nuova palestra affonda il piano di gioco a livello interrato emergendo solo brevemente per permettere l’accesso autonomo dall’esterno.

INSERIMENTO URBANO

PLANIMETRIA

PLASTICO

1. Nuova palestra interrata

2. Edificio scolastico esistente

3. Nuovo blocco didattico polivalente

SEZIONE TRASVERSALE

1. Palestra polivalente

3. Agorà

6. Aule didattiche ampliamento

           7. Sala mensa  

  8. Sala musica

  9. Foyer

10. Auditorium – sala polivalente

PIANTA LIVELLO -2

1. Palestra polivalente

PIANTA LIVELLO 0

2. Ingresso principale                           5. Aule didattiche edificio esistente

3. Agorà                                                   6. Aule didattiche ampliamento

4. Spazi amministrativi-insegnanti      7. Sala mensa

PIANTA LIVELLO 1

3. Agorà

5. Aule didattiche edificio esistente

6. Aule didattiche ampliamento

8. Sala musica

PIANTA LIVELLO 2

  9. Foyer

10. Auditorium – sala polivalente


POLO SCOLASTICO A TREMEZZINA (CO)
RIQUALIFICAZIONE E AMPLIAMENTO DEL POLO SCOLASTICO DELLA TREMEZZINA
IN LOCALITA' "OSSUCCIO"

PROGETTO

Giovanna Ruggieri

CON

Giovanni Maggioni, Davide Spreafico

STRUTTURE

Regolo Poluzzi

IMPIANTI

       In.te.so. Ingegneria srl

COMMITTENTE

Costruzioni Perregrini srl

LOCALIZZAZIONE

       località Ossuccio – via Provinciale snc

CRONOLOGIA

2012 – Progetto per appalto integrato