Liceo artistico a Trento

Il tema del fare “ARTE”, oggi, non può essere che trasversale: dalla formazione alla fruizione attraverso le molteplici occasioni che la città e la sua cultura possono offrire. Incardinato a questo principio, il progetto rivolge gli spazi della formazione alla città attraverso due elementi significativi: il volume trasparente della piazza coperta e quello lineare degli spazi espositivi che definisce l’ingresso in continuità funzionale con il giardino pensile. Il primo riveste, per immagine e funzione, il ruolo di catalizzatore, mentre il secondo comunica con immediatezza l’apertura dell’istituzione scolastica alla città.

Attorno al solido trasparente si raccoglie il grande corpo di fabbrica ad “L” degli spazi didattici realizzato ex-novo sul preesistente impianto strutturale a due livelli di cui il bando prevedeva la conservazione. Le nuove volumetrie si smaterializzano a sud e ad est nelle trasparenze delle pareti vetrate protette dai frangisole. A nord e ad ovest le facciate si compattano in un sistema a pannelli verticali irregolari, trasparenti e opachi, che permette di assorbire in uno schema geometrico astratto le differenti dimensioni delle finestrature calibrate sulle necessità dei singoli ambienti.

Internamente, il vuoto centrale a tutt’altezza diventa il fulcro delle attività raccogliendo attorno a sé gli spazi di circolazione e dando vita agli ambienti collettivi della biblioteca e delle sale multimediali. Dal piano terra, la gradonata conduce al giardino pensile ricongiungendo i flussi interni agli spazi aperti al pubblico in un fisico e non solo ideale percorso circolare.

INSERIMENTO URBANO

PLANIVOLUMETRICO

ASSONOMETRIA

1. Volume della piazza coperta

2. Spazi espositivi

3. Giardino pensile

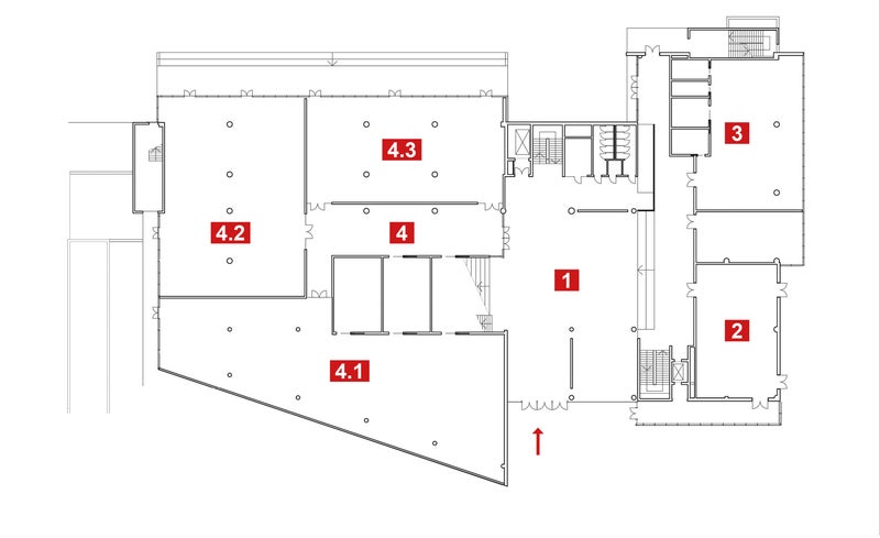
PIANTA PIANO TERRA

1. Atrio/piazza coperta

2. Sala polivalente

3. Laboratori arti figurative

4. Laboratori design
    4.1. Legno/Arredamento
    4.2. Metallo/Gioielli
    4.3. Modellistica

PIANTA PIANO PRIMO

5. Giardino pensile

6. Spazi espositivi

7. Laboratori multimedia

8. Laboratori base

PIANTA PIANO SECONDO/TERZO

  9. Aule riconfigurabili

10. Aule/Spazi docenti

11. Biblioteca/Sale multimediali


LICEO ARTISTICO A TRENTO
NUOVA SEDE DEL LICEO ARTISTICO "A. VITTORIA"

CONCORSO

Concorso nazionale

ENTE BANDITORE

Provincia Autonoma di Trento

PROGETTO

Giovanna Ruggieri

CON

Anton Giulio Debiasi, Fabio Ferrario - Ting Group so.co,
Fabio Bonfiglioli

CRONOLOGIA

2017